
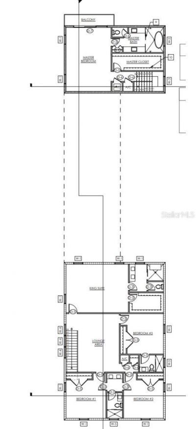
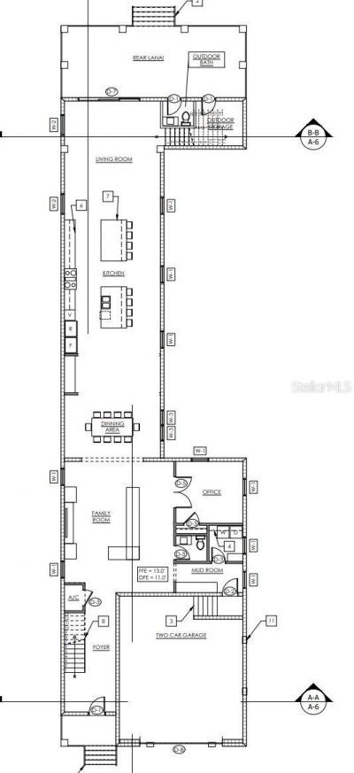
One or more photo(s) has been virtually staged. Under Construction. Scheduled for completion in May 2026. Introducing a rare opportunity to own a true architectural statement in the heart of Ballast Point. This custom-built modern luxury residence seamlessly blends elevated construction, timeless design, and exceptional craftsmanship - all built to current FEMA elevation standards for lasting peace of mind. This concrete block construction home makes an unforgettable first impression with 10-foo...One or more photo(s) has been virtually staged. Under Construction. Scheduled for completion in May 2026. Introducing a rare opportunity to own a true architectural statement in the heart of Ballast Point. This custom-built modern luxury residence seamlessly blends elevated construction, timeless design, and exceptional craftsmanship - all built to current FEMA elevation standards for lasting peace of mind. This concrete block construction home makes an unforgettable first impression with 10-foot ceilings, 8-foot solid core doors, intricate crown molding, and dramatic coffered ceiling details that create architectural depth and elegance throughout. Impact-rated hurricane windows provide security, efficiency, and quiet comfort while allowing natural light to flood every space. Designed for both grand entertaining and refined daily living, the showpiece kitchen features dual oversized islands, custom cabinetry, premium finishes, and an effortless flow into the expansive living and dining areas. A grand pivot front door, striking floating staircase, and a glass wine display create a stunning focal point upon entry - a true conversation piece that defines the home's modern sophistication. The thoughtfully designed first floor includes a private office, mudroom, spacious laundry room, elegant powder bath, and an oversized two-car garage featuring a rare 10-foot-high opening - ideal for larger vehicles and additional storage. Upstairs, a split-bedroom layout offers privacy and flexibility. One wing includes four spacious bedrooms, three beautifully appointed bathrooms, and a versatile loft area perfect for a media space or lounging. The opposite wing is dedicated entirely to the primary suite - a secluded retreat complete with a private balcony, expansive walk-in closet, in-suite washer and dryer, and a spa-caliber bath featuring a freestanding soaking tub within a walk-in shower and dual rainfall shower heads. The covered rear lanai is designed for year-round enjoyment and includes a convenient half bath and additional storage, making it ideal for a future pool or outdoor entertaining. Located in one of South Tampa's most desirable neighborhoods, this Ballast Point masterpiece offers luxury, elevation, and modern resilience - all just moments from waterfront parks, dining, and downtown Tampa.
View MoreCourtesy of
Agency Name: SPIEGEL LUXURY GROUP
Agency Contact: 727-452-9659
Agent Name: Madelyn Spiegel
Presented by
Agent Name: Sophie Chatonet
Agent Phone: 772.333.5024
Agency Title: The Keyes Company
Send an email with a link to
6010 S Elkins Avenue, Tampa, FL 33611.
Email 6010 S Elkins Avenue, Tampa, FL 33611
Thank you for your inquiry! As a thank you, we have a Special Mortgage Offer for You.
We would like to provide you a free, no-obligation, home loan pre-approval review.